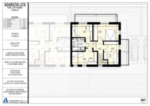
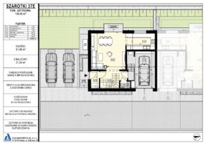
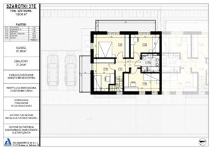
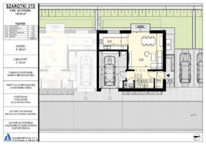
Investment:
Residential buildings at Szarotki St. in Krakow
Investor / Ordering Party:
AGA-Bauservice Sp. z o. o.
Works performed:
- Formal and legal preparation of the investment.
- Comprehensive investment implementation.
- House sales.
Implementation period:
April 2024 – currently in progress
Place of implementation:
Szarotki Street, Krakow, Poland


